Franklin
Franklin 230
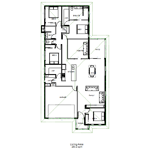
Here in the Franklin, it all happens in the center of the light filled, sun dappled home, where expansive doors from the airy, open-plan kitchen/dining/living space open to the outdoor living.
This inviting space becomes another place for meals and hanging out on those beautiful Spring nights.
And for those chilly winter nights, the theatre offers a space to curl up and have a family movie night.
There’s no compromise in the accommodation wing, where adults can indulge in the serene master suite at the back of the Franklin, knowing the kids are safe and sound in the two additional bedrooms, both with easy access to the central family bathroom.
Enjoy coming home to the Franklin.
